2018年3月机修钳工高级技师模拟试题及答案卷26
试题展示2018年3月机修钳工高级技师模拟试题及答案卷26机修钳工职业资格高级技师最新最全,免费模拟练习
2018年机修钳工模拟试题及答案由云习网提供
职业资格下载地址 免费练习 。
1、(单选题)数控机床开机后首先使各轴自动检测参考点,其检测顺序为()。
A X、Y、Z
B X、Z、Y
C Z、X、Y
D Z、Y、X
正确答案:C
2、(主观题)论述聚四氟乙烯塑料板导轨的特点和贴塑导轨的粘接工艺。
正确答案:特点:聚四氟乙烯塑料板耐磨、含油,有足够的刚性、抗压强度和抗拉强度,还具有对硬质杂物的嵌合性。设备修理中常以它作为床身导轨的尺寸链补偿、减小摩擦因数、增加耐磨性。|粘接工艺:|(1)粘接聚四氟乙烯塑料板的放样。|(2)按设计好的厚度和放样,裁取塑料板,并配导轨胶。|(3)清洗导轨表面,一般采用煤油或甲苯,再用丙酮进行清洗,然后均匀地在导轨面抹导轨胶,导轨表面粗糙度最好较粗些。|(4)在所粘接的塑料板的一面也均匀地抹上很薄一层导轨胶,放到导轨上,使其接合面全部接触。|(5)由于导轨胶是厌氧型的,所以在塑料板贴服后,在台面上施加重物,以排除空气使贴服紧密。|(6)常规气温一般在
3、(单选题)项目性修理对设备的尺寸链()影响。
A 一定有
B 一定没有
C 可能会有
D 无法确定是否有
正确答案:C
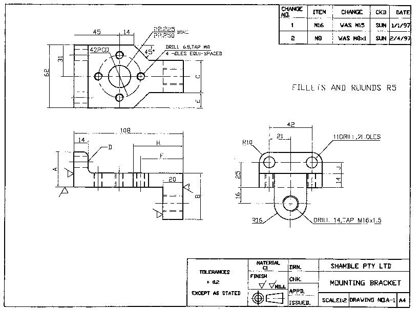
4、(主观题)读下图,|

|回答表中问题。1、此件要钻几个孔?2、此件总高是多少?|3、尺寸A是多少?4、M8螺纹攻丝前的尺寸是多少?|5、尺寸B是多少?6、此件公差有何规定?|7、尺寸C是多少?8、M16螺孔属于什么系列?|9、尺寸E是多少?10、孔D直径是多少?|11、尺寸F是多少?12、要镗的孔公差是多少?|13、PCD是什么意识?14、此件表面粗糙度有何要求?|15、内外圆角半径是多少?16、尺寸H是多少?|17、此件上有多少螺孔?18、尺寸J是多少?|19、有多少个表面要机加工?20、此图是第几角投影?
正确答案:1、此件要钻几个孔?8个|2、此件总高是多少?67mm|3、尺寸A是多少?35mm|4、M8螺纹攻丝前的尺寸是多少?6.8mm|5、尺寸B是多少?46mm|6、此件公差有何规定?+0.2|7、尺寸C是多少?32mm|8、M16螺孔属于什么系列?细牙系列|9、尺寸E是多少?15mm|10、孔D直径是多少?11mm|11、尺寸F是多少?42mm|12、要镗的孔公差是多少?0.025|13、PCD是什么意识?同心圆|14、此件表面粗糙度有何要求?铣削表面|15、内外圆角半径是多少?R5mm|16、尺寸H是多少?49mm|17、此件上有多少螺孔?5个|18、尺寸J是多少?11mm|19、有多少个表面要机加工?4个|20、此图是第几角投影?第3角|
5、(单选题)机械设备在规定的条件下,在规定的时间内,按规定的程序和方法进行维修时,保持或恢复到规定状态的能力称为()。
A 维修活动
B 维修度
C 维修方式
D 维修性
正确答案:D
6、(单选题)某加工中心运行一个月后,发生Z轴方向加工尺寸不稳定,尺寸超差无规律,CRT及伺服放大器无任何报警,请问下列哪个原因造成()。
A 主轴跳动误差大
B Z轴联轴器联接螺钉松动
C 加工原点设置错误
D 编程时Z轴赋值错误
正确答案:B
7、(主观题)数控机床出现了加工工件表面粗糙度值大的现象,从滚珠丝杠的方面分析原因并提出处理办法。
正确答案:(1)导轨的润滑油供油不足,使移动部件爬行,应加润滑油,排除润滑故障。|(2)滚珠丝杠有局部拉毛或破损,应更换或修理丝杠。|(3)丝杠轴承损坏,运动不平稳,应更换损坏的轴承。|(4)伺服电动机未调整好,增益过大,应调整伺服电动机的控制系统。
8、(多选题)液压泵是提供一定()的液压能源泵。
A 流速
B 流向
C 功率
D 流量
E 压力
正确答案:DE
9、(主观题)数控加工中心的特点是什么?
正确答案:答:(1)具有至少三个轴的轮廓控制的能力,(2)具有自动刀具交换的装置,(3)具有分度工作台或数控转台,(4)具有选择各种进给速度和主轴转速的能力及各种辅助功能,(5)具有处在工作位置的工作台在进行工件加工的同时,也可对装卸位置的工作台进行工件的装夹,而不影响正常加工的功能(前提是配有交换工作台的功能)。
10、(判断题)了减少钻头与孔壁的摩擦,钻头的直径向柄部逐渐增大。
正确答案:错误
11、(判断题)可靠度是指机械设备和零部件在某种使用条件下和规定时间内保持正常使用状态的概率。
正确答案:错误
12、(判断题)数控系统在加工过程中,显示突然消失,重新开机后,系统又出现正常显示,但工作数小时后,显示又消失。此类故障一般都是显示器本身损坏、或有故障而造成的。
正确答案:正确
13、(单选题)设备()是对设备修理计划进行监督、评价和指导的先进技术。
A 看板管理
B 因果图
C 网络计划
D 直方图
正确答案:C
14、(判断题)PLC的梯形图与继电器控制系统的电路图是一样的。
正确答案:错误
15、(单选题)现代管理中常提到的TQC里面的Q是指()。
A 快
B 数量
C 质量
D 高效
正确答案:C
16、(主观题)设备修理主要的通用质量检验标准包括哪些?
正确答案:1)机器设备通用装配质量标准|2)金属加工设备修理通用技术条件|3)设备整机验收通用技术标准。
17、(主观题)请写出机械设备电气图纸中的SB、KM、NO、NC、KA、FR、QF、DC、AC、CNC分别代表什么?
正确答案:按钮开关、交流接触器、常开触点、常闭触点、中间继电器、热继电器、熔断器、直流、交流、数控系统
18、(单选题)二级保养所用的时间一般为()天左右。
A 7
B 6
C 5
D 4
正确答案:A
19、(判断题)教学人员必须与学生及其他教职员保持良好及亲切的关系,表现高尚的个人操守,穿着整齐及外貌整洁,对各方面的工作及对学生的关系要显示出强大的领导能力及榜样来。
正确答案:正确
20、(多选题)金属材料的热处理是用()的方法来调节和改善其材料的性质。
A 淬火、正火
B 淬火、回火
C 退火、正火
D 加热
E 加热后冷却
正确答案:DE
21、(判断题)企业生产能力由参与生产的固定资产数量、固定资产的工作时间、固定资产的生产效率等3个基本因素决定。
正确答案:正确
22、(判断题)训课程是因应不同程度及不同类型学生的需要(在分配的时间内)而设计的,这些课程会被经常检查及因应转变的工业环境而作出修改。
正确答案:正确
23、(单选题)在夹具中用较长的V形槽来作工件圆柱表面的定位元件时,它可以限制工件的()自由度。
A 两个
B 三个
C 四个
D 五个
正确答案:C
24、(单选题)机械设备在规定的条件下,在规定的时间内,按规定的程序和方法进行维修时,保持或恢复到规定状态的能力称为()。
A 维修活动
B 维修度
C 维修方式
D 维修性
正确答案:D
25、(单选题)具有高度责任心应做到()。
A 忠于职守,精益求精
B 不徇私情,不谋私利
C 光明磊落,表里如一
D 方便群众,注重形象
正确答案:A
26、(判断题)维修是包括保养、修理、改装、翻修、检查等一切有关设备维护和修理的活动。
正确答案:正确
27、(主观题)分别写出工序质量控制点的作用和设置原则。
正确答案:( 1)工序质量控制点的作用是:|①使工序处于受控状态,在产品制造过程中,运用重点控制和预防为主的思想,控制关键质量特性值、关键部位、薄弱环节等。|②控制某个具体的定量质量特性。|(2)工序质量控制点设置原则是:|①按全部质量特性的重要性分为A 级质量特性和少数为 B 级质量特性,以及关键部位。|②工艺上有特殊要求,对下道工序的加工、装配有重大影响的项目。|③内、外部质量信息反馈中出现质量问题较多的薄弱环节。
28、(多选题)机床在零件加工时,出现工件尺寸与实际尺寸不符合或某一轴向有很大变化,与()因素有关。
A 快速定位速度过快
B 电子齿轮比参数
C 换刀时间过短
D 电机失步
E 主轴转速
正确答案:ABCD
29、(单选题)登高梯子要符合安全要求,上下端放置牢靠,与地面夹角不应大于()。
A 30°
B 45°
C 50°
D 60°
正确答案:D
30、(单选题)财务管理是指企业在生产或经营过程中与资金运动有关的事务进行计划、组织、指导、()的一系列活动。
A 协调、控制
B 计算、协调
C 计算、控制
D 调用、记帐
正确答案:A